5252 OAKBOURNE AVENUE,DAVENPORT,Polk,Residential

  • $720,000
5252 OAKBOURNE AVENUE
Residential Active
5252 OAKBOURNE AVENUE,DAVENPORT,Polk,Residential
5252 OAKBOURNE AVENUE
  • $720,000

Overview

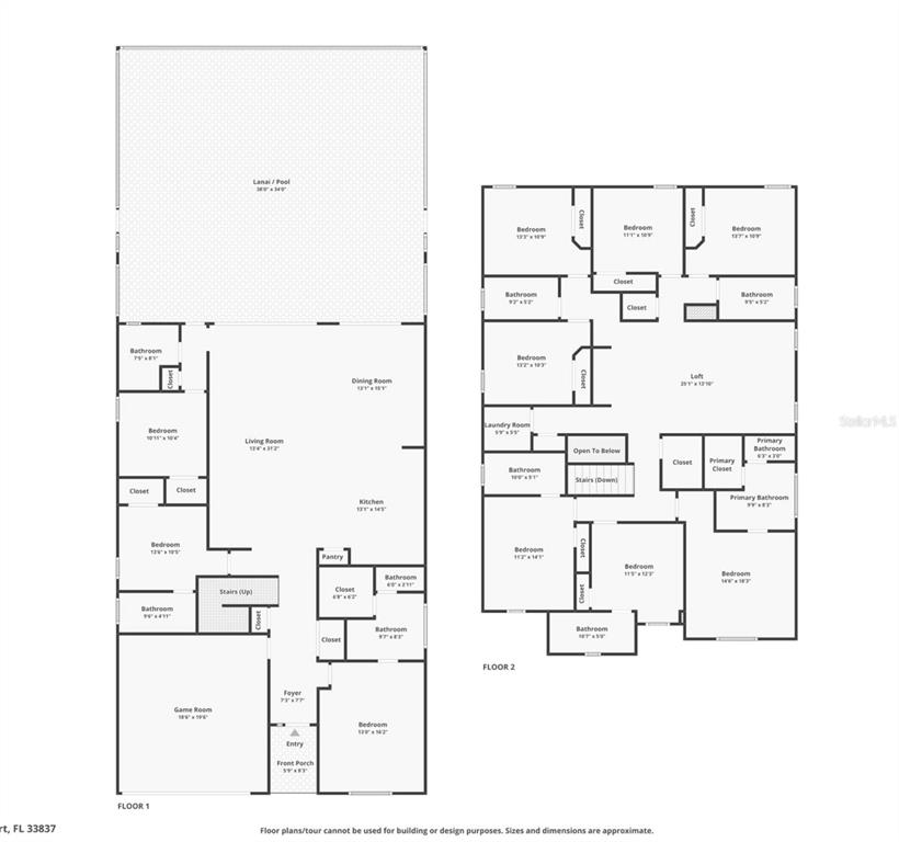
Property ID: O6357699
  • Single Family Residence
  • Property Type
  • 10
  • Bedrooms
  • 8
  • Bathrooms
  • 2
  • Garages
  • 4231
  • Square Feet
  • 2017
  • Year Built

Description

Back on Market, buyer backed out due to unforeseeable circumstances. Welcome to Palacio Paraíso, a stunning 10-bedroom estate inside the guard-gated Solterra Resort — a royal retreat just minutes from the magic of Disney. Designed to host guests with style and comfort, this home offers bright open living spaces, 5 en-suite bedrooms, and room for everyone (and we do mean everyone) to relax, recharge, and revel in the Florida sunshine. ***

This home combines luxury, scale, and comfort with thoughtful upgrades throughout, including two refrigerators, two dishwashers, two laundry rooms (upstairs and downstairs), and an upstairs built-in bar/service area perfect for hosting. ***

The main level features durable wood-grain plank ceramic tile for beauty and practicality, while the second floor offers luxury vinyl for comfort and quiet. The only carpet? Just the stairs — for safety, softness, and a neutral, timeless look. ***

Step into your private screened-in pool/heated spa oasis, the perfect antidote to long park days and even longer group chats. ***

Solterra Resort elevates everyday living with 24/7 guard-gated security, a resort-style pool with 10’ curving water slide, lazy river, pickleball, tennis, sand volleyball, an on-site café, and a fully refurbished fitness center with brand-new equipment. The community is also undergoing a fresh landscaping transformation — because even paradise appreciates a little pampering. ***

Just over 20 minutes from Disney, and near restaurants, shopping, golf, and entertainment, Palacio Paraíso blends luxury, whimsy, and comfort in one unforgettable address.

  • Address OAKBOURNE
  • City Davenport
  • State/county Polk, State FL
  • Zip/Postal Code 33837

Details

Updated on March 16, 2026 at 6:03 am
  • Property ID: O6357699
  • Price: $720,000
  • Property Size: 4231 Square Feet
  • Land Area: 5998 Square Feet
  • Bedrooms: 10
  • Bathrooms: 8
  • Garages: 2
  • Year Built: 2017
  • Property Type: Single Family Residence
  • Property Status: Residential

Additional details

  • Association Fee: 832.19
  • Association Fee Frequency: Quarterly
  • Association Fee Includes: 24-Hour Guard, Community Pool, Internet, Maintenance Grounds, Recreational Facilities, Security, Trash
  • Bathrooms Full: 8
  • Days OnMarket: 104
  • Direction Faces: West
  • OnMarketDate: 2025-11-20
  • Street Name: OAKBOURNE
  • Street Number: 5252
  • TaxAnnualAmount: 12399.39
  • Tax Year: 2024

Contact Information

View Listings

Enquire About This Property

Compare listings

Compare