1007 BASEBALL AND BOARDWALK COURT,KISSIMMEE,Osceola,Residential

  • $225,000
1007 BASEBALL AND BOARDWALK COURT
Residential Active
1007 BASEBALL AND BOARDWALK COURT,KISSIMMEE,Osceola,Residential
1007 BASEBALL AND BOARDWALK COURT
  • $225,000

Overview

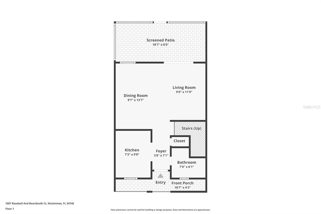
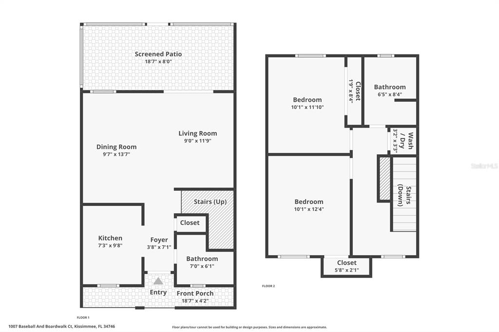
Property ID: S5140259
  • Townhouse
  • Property Type
  • 2
  • Bedrooms
  • 2
  • Bathrooms
  • 1052
  • Square Feet
  • 1983
  • Year Built

Description

1% lender credit (based on loan amount) toward closing costs or rate buy-down with seller’s preferred lender.

Welcome to this fully furnished, turnkey end-unit villa located in a desirable resort-style community, just minutes from Walt Disney World and major area attractions. This well-maintained two-story villa offers a comfortable and convenient lifestyle with easy access to community amenities, all within a short walking distance.

The villa features an open and functional layout filled with natural light, central air conditioning, and an in-unit washer and dryer. Window blinds are installed throughout for added comfort and privacy. The end-unit location enhances light and overall livability.

Community amenities include a resort-style pool, lazy river, water slides, lap pool, fitness center, and business center. Additional recreational amenities include tennis, pickleball, and basketball courts, mini golf, batting cage, playground, and arcade. Outdoor common areas offer charcoal and gas grills with picnic tables. A fenced dog park, ample free parking, and electric vehicle charging stations are also available for resident and guest convenience.

The homeowners association provides exterior painting, roof maintenance, lawn care, high-speed internet, TV service, and access to community amenities, offering a low-maintenance ownership experience.

This property is suitable for a primary residence, second home, or as part of a short-term rental program, subject to association and local regulations. Schedule your private showing today to learn more about this well-appointed property and its community offerings.

  • Address BASEBALL AND BOARDWALK
  • City Kissimmee
  • State/county Osceola, State FL
  • Zip/Postal Code 34746
  • Country USA

Details

Updated on April 15, 2026 at 7:05 pm
  • Property ID: S5140259
  • Price: $225,000
  • Property Size: 1052 Square Feet
  • Land Area: 1002 Square Feet
  • Bedrooms: 2
  • Bathrooms: 2
  • Year Built: 1983
  • Property Type: Townhouse
  • Property Status: Residential

Additional details

  • Association Fee: 900.81
  • Association Fee Frequency: Monthly
  • Association Fee Includes: Community Pool, Maintenance Structure, Maintenance Grounds, Manager
  • Bathrooms Full: 2
  • Days OnMarket: 100
  • Direction Faces: East
  • Elementary School: Reedy Creek Elem (K 5)
  • HighSchool: Celebration High
  • MiddleOrJuniorSchool: Kissimmee Middle
  • OnMarketDate: 2026-01-05
  • Street Name: BASEBALL AND BOARDWALK
  • Street Number: 1007
  • TaxAnnualAmount: 2499
  • Tax Year: 2025

Contact Information

View Listings
Alistair Brown

Enquire About This Property

Compare listings

Compare
Alistair Brown
  • Alistair Brown