8016 LOST SHAKER LANE,KISSIMMEE,Osceola,Residential

  • $500,000
8016 LOST SHAKER LANE,KISSIMMEE,Osceola,Residential
sale Active
8016 LOST SHAKER LANE,KISSIMMEE,Osceola,Residential
8016 LOST SHAKER LANE,KISSIMMEE,Osceola,Residential
  • $500,000

Overview

Property ID: O6347658
  • House
  • Property Type
  • 5
  • Bedrooms
  • 5.5
  • Bathrooms
  • 1905.2
  • Sq Ft

Description

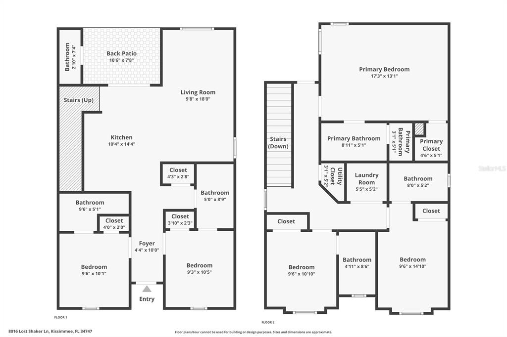
Best Price in the community!!!Welcome to the Blue Lagoon! This stunning 5-BEDROOM, 5.5-BATH COTTAGE is located in the highly sought-after Margaritaville Resort Orlando, the ultimate destination for island-inspired living just minutes from Disney and all Orlando attractions. Whether you’re looking for a primary residence, second home, or a turnkey vacation rental, this property is designed to impress.
Step inside and enjoy the light-filled open floor plan with upgraded tile flooring, ceiling fans throughout, and stylish new furniture included in the sale. The spacious living area flows seamlessly into the fully equipped kitchen, featuring quartz countertops, stainless steel appliances, a breakfast bar, and plenty of room to gather and entertain. Sliding doors open to your private paved patio—perfect for relaxing after a day of fun.
The thoughtful layout offers two bedrooms with en-suite baths on the first floor and three bedrooms upstairs, including a spacious master suite ,and a balcony. Each bedroom is a private retreat with plush bedding, ample storage, and coastal-inspired décor.
This home has been owner-occupied and very well maintained, showcasing pride of ownership throughout. The Furniture package and décor are INCLUDED, making it completely move-in or rental ready from day one.
As part of the resort you’ll enjoy world-class amenities: multiple resort-style swimming pools, a full-service spa, fitness center, water park, Fins Up Beach Club, and endless dining, shopping, and entertainment at the lively Sunset Walk.
Don’t miss this opportunity to own a piece of paradise in one of Orlando’s premier resort communities. Every day feels like a vacation at Margaritaville!

  • Address Kissimmee, , USA
  • City Kissimmee
  • State/county Florida
  • Zip/Postal Code 34747
  • Country USA

Details

Updated on February 6, 2026 at 8:36 am
  • Property ID: O6347658
  • Price: $500,000
  • Property Size: 1905.2 Sq Ft
  • Land Area: 1307 Square Feet
  • Bedrooms: 5
  • Bathrooms: 5.5
  • Property Type: House
  • Property Status: sale

Additional details

  • Association Fee: 457
  • Association Fee Frequency: Monthly
  • Association Fee Includes: 24-Hour Guard, Cable TV, Internet, Maintenance Grounds, Pest Control, Security, Trash
  • Bathrooms Full: 5
  • Days OnMarket: 121
  • Direction Faces: Northeast
  • OnMarketDate: 2025-10-01
  • Street Name: LOST SHAKER
  • Street Number: 8016
  • TaxAnnualAmount: 12175.96
  • Tax Year: 2024

Contact Information

View Listings
Alistair Brown

Enquire About This Property

Compare listings

Compare
Alistair Brown
  • Alistair Brown