509 BUCHANNAN DRIVE,DAVENPORT,Polk,Residential

  • $379,590
509 BUCHANNAN DRIVE
Residential Active
509 BUCHANNAN DRIVE,DAVENPORT,Polk,Residential
509 BUCHANNAN DRIVE
  • $379,590

Overview

Property ID: P4937602
  • Single Family Residence
  • Property Type
  • 4
  • Bedrooms
  • 2.5
  • Bathrooms
  • 2
  • Garages
  • 2625
  • Square Feet
  • 2019
  • Year Built

Description

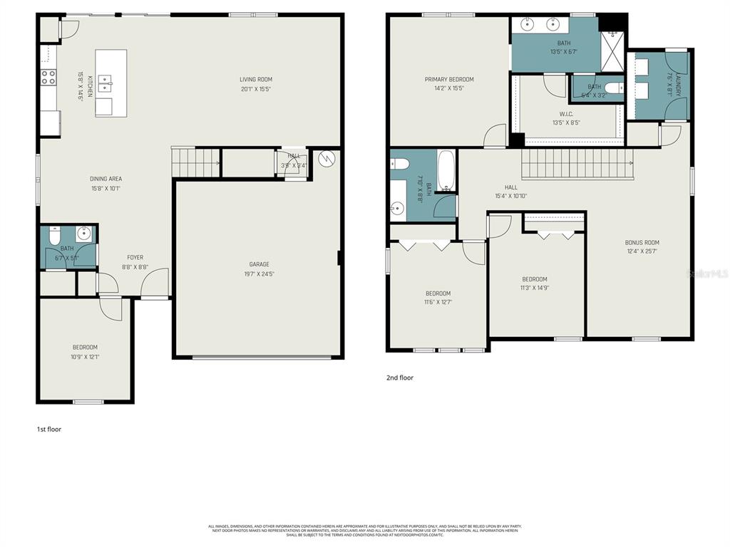
Welcome to 509 Buchannan Drive! Offering over 2,600 square feet of living space, this beautiful two-story home features a spacious open-concept layout ideal for both family living and entertaining. The home includes 4 bedrooms, 2.5 bathrooms, a 2-car garage, an upstairs loft, and Solar Panels to help reduce electric costs. Upon entry, you’re greeted by a spacious foyer that seamlessly flows into the dining area and continues into the heart of the home, the kitchen. Well-appointed with a large center island, stainless steel appliances, and ample counter space and cabinetry for storage. The oversized great room is perfect for gathering and entertaining. Also located on the main level is an additional room along with a half bathroom, making it perfect for guests or a home office. Upstairs, you’ll find an oversized loft, ideal for a home theater, bonus room, playroom, or additional living space. The second floor also features a walk-in laundry room with extra storage, two generously sized secondary bedrooms, and a full bathroom. The primary suite offers a private retreat with a large walk-in closet and an ensuite bathroom featuring dual vanities and a walk-in shower. In the backyard, you’ll find ample space for relaxation and entertaining, with plenty of room to create your own private outdoor oasis. Community amenities include, a dog park, playground, and swimming pool. Conveniently located near theme parks, major roads/highways, shopping malls, restaurants, schools, and a movie theater, this home offers both comfort and accessibility. Schedule your private showing today!

  • Address BUCHANNAN
  • City Davenport
  • State/county Polk, State FL
  • Zip/Postal Code 33837
  • Country USA

Details

Updated on February 7, 2026 at 10:04 pm
  • Property ID: P4937602
  • Price: $379,590
  • Property Size: 2625 Square Feet
  • Land Area: 5502 Square Feet
  • Bedrooms: 4
  • Bathrooms: 2.5
  • Garages: 2
  • Year Built: 2019
  • Property Type: Single Family Residence
  • Property Status: Residential

Additional details

  • Association Fee: 147
  • Association Fee Frequency: Annually
  • Bathrooms Full: 2
  • Days OnMarket: 17
  • Direction Faces: South
  • Elementary School: Horizons Elementary
  • HighSchool: Ridge Community Senior High
  • MiddleOrJuniorSchool: Boone Middle
  • OnMarketDate: 2026-01-21
  • Street Name: BUCHANNAN
  • Street Number: 509
  • TaxAnnualAmount: 7225
  • Tax Year: 2025

Contact Information

View Listings
Alistair Brown

Enquire About This Property

Compare listings

Compare
Alistair Brown
  • Alistair Brown